Elderly residents at Bondi Beach are preparing to challenge a proposed six-storey development they say will block sunlight, fresh air, and coastal views from their retirement village. The proposed building at 32 Campbell Parade sits just metres from The Astra, a long-standing residence for retirees overlooking Sydney’s iconic shoreline.
Development Proposal Lodged In September
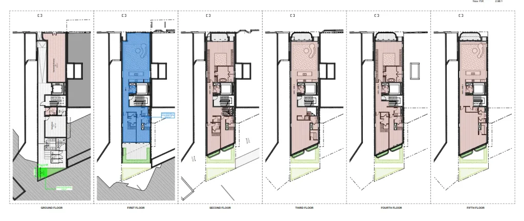
The development application, lodged with Waverley Council on 15 September 2025, outlines plans for a mixed-use building with a small commercial space at street level and three large residential apartments above. Architectural plans by DARC Studio show a six-level, 20-metre building with a rooftop plant area, only 4.2 square metres of deep soil, and about 10 square metres of landscaping.

The plans also include one 131-square-metre unit designated as affordable housing under the State Environmental Planning Policy (Housing) 2021, which allows for up to a 30 per cent increase in floor space and building height. The remaining units are described as large, multi-level apartments, likely targeting high-end buyers.
Neighbours Fear Loss Of Light And Privacy
Residents of The Astra, a six-storey retirement village next door, say the new building will block their ocean views, leaving only a narrow gap and minimal boundary setback between the structures.

Shadow diagrams in the development plans show significant overshadowing during the winter months, reducing sunlight in nearby apartments. Residents also worry about privacy, as the new building’s upper-level windows appear to directly overlook existing living areas. One resident, Darryl Bourke, said that the project would leave him with “no light, no sky, and no air.”
Council Review And Community Submissions
Waverley Council confirmed the application is still in its notification phase, meaning residents can lodge objections. Council staff will assess the project against local planning rules and state legislation, including the SEPP (Housing) 2021.

The proposal will then be referred to the Waverley Local Planning Panel, which will make the final decision independently of council. Council has acknowledged community concerns about sunlight, view loss, and neighbourhood character. A spokesperson stated that all resident submissions will be reviewed before an assessment report is completed.
Community Campaign Gains Momentum
A grassroots campaign, Save South Bondi, has emerged to coordinate community objections. The group’s website says the project breaches local height limits, risks overshadowing residents, and urges locals to email Waverley Council to oppose the “20-metre wall of concrete.”
Architectural plans confirm the building will replace an existing two-storey structure while retaining part of its heritage façade. The design’s bulk and height have fuelled concerns among long-time residents who view the project as incompatible with Bondi’s coastal setting.
For now, Bondi Beach residents remain determined to ensure their voices are heard. Many hope their objections will lead to a more balanced design that respects both development rights and community wellbeing.
Published 11-November-2025








